| Competition: | 2017 |
| Location: | Latvia, Cēsis |
| Competition Team: | |
| Lauder Architects: | Rita Laudere, Kārlis Lauders, Valdis Linde, Harijs Vucens, Anna Līva Traumane, Betija Balode, Viesturs Dille, Alvis Petrovskis |
| ALPS: | Ilze Rukšāne, Marc Geldof, Evita Alle, Mētra Augškāpa, Māris Bušs |
| CMB: | Maija Krizmane, Laura Gleizde, Arvids Leimanis |
| Acitektura: | Ainārs Cikanovičs |
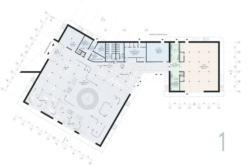
1st prize in competition of Cēsis Space Exploration Center
The concept of the Space Cognitive Center is based on three equally important basic principles:
- To create a building that corresponds to the function and location, which together with the well-maintained surrounding area would create a new anchorage for attracting people and investment.
- To create functional internal spatial structure and semantically accurate architectural character at the same time being in accordance with passive building standards.
- Logically adjust the surrounding infrastructure flows and create a landscape architecture that matches the image of the center.