School in Sillamae

Competition: 2019, 1st price
Year: 2022
Location: Sillamäe, Estonia
Competition Team: Rita Laudere, Zane Kalniņa, Valdis Linde, Kārlis Lauders, Ieva Krūte, Arta Lāce, Signe Pērkone, Viesturs Dille, Tonu Laanemae
Project Development Team: Kārlis Lauders, Rita Laudere, Zane Bernāne, Valdis Linde, Zane Kalniņa, Helmuts Nežborts, Viesturs Dille, Tonu Laanemae
Photos: Tõnu Tunnel
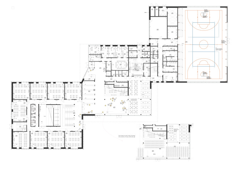
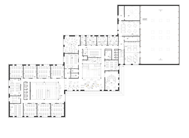
The project idea is original and at the same time very practical. The division of the building into three independent buildings, with zoning of the spaces, provides a wide range of activities in a relatively small area, while also creating a cozy and private atmosphere. The building meets modern requirements for openness and integration of learning spaces. Its interior architecture creates conditions for informal education: development of project activities, interest-based activities, initiatives, and entrepreneurship. Modern and thoughtful architecture began to dictate conditions for the behavior of children and adults: teachers have an informal approach to teaching; students have the birth of new ideas to diversify school life. A large amount of natural light is provided by windows and skylights. This solution ensures significant expansion of space, airiness, and openness. The building organically fit into the cityscape and undoubtedly adorned the city
Irina Lju
School principal